Home.  Construction Projects.
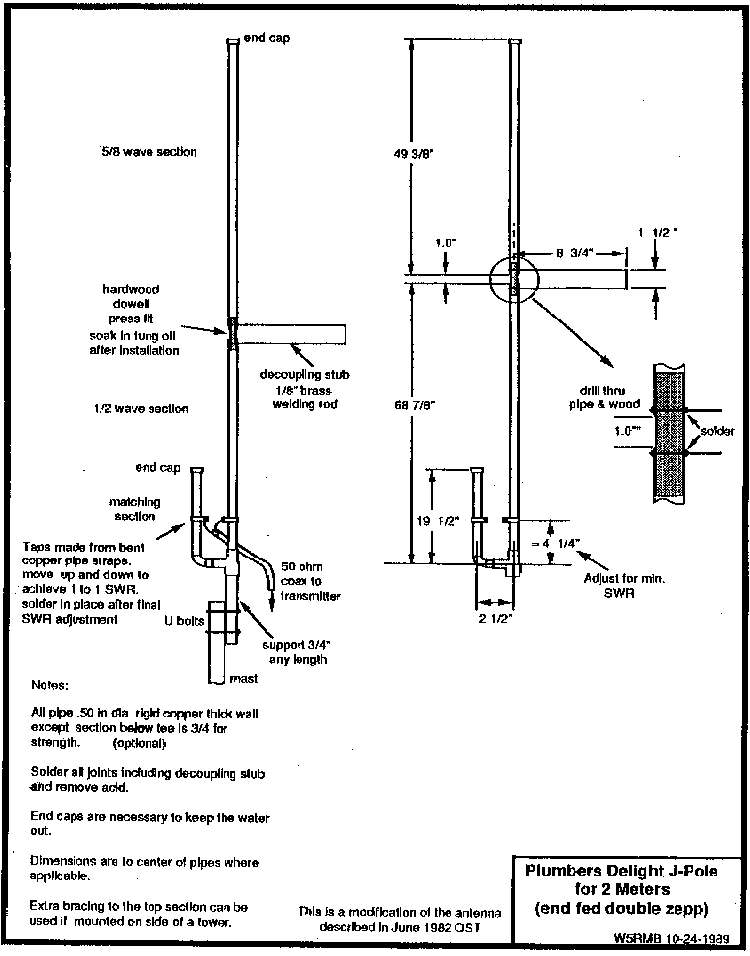
Plumbers Delight
J-Pole
Antenna

Hattiesburg Amateur Radio Club